Create Your First Project
Start adding your projects to your portfolio. Click on "Manage Projects" to get started
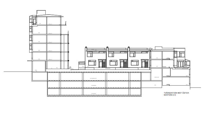
Fajansfabriken
Plats
Kungsholmen, Stockholm
År
1996-2002
Arkitekt
Gabriel Herdevall (ansvarig arkitekt), Jens Deurell (ansvarig arkitekt)
Beställare
JM
Bostäder på ett gammalt garage
Byggt över ett befintligt garage är projektet ett utryck för senare års strävan att hitta all återstående byggbar mark i anslutning till innerstaden. Omgivningen mellan DN-skrapan och Lilla Essingen består av stora friliggande volymer i öppet parklandskap. Önskemål om en halvprivat bostadsgård gav grupperingen av volymerna. I huset längs Gjörwellsgatan upptas bottenvåningen mot gatan av butiker. Ett skärmtak i hela husets längd sammanfattar det publika innehållet. Det lägre huset mot Wivalliusgatan består av radhus med entréer från både gata och gård. En livfull volym där den veckade fasaden ger bostäderna varierade utblickar och insynsskyddade uteplatser. Terrasser och förgårdarnas grönska samverkar till ett intimt gaturum. Bostäderna har med rumshöjd på 2,8 m, och fönster upp till tak, ljusa och rymliga interiörer. Pelarstommen medger att mellanväggar kan flyttas och bostäderna förändras över tiden.




























